Планирование: проекты и чертежи бани
Как выглядела русская баня в давние времена, можно увидеть на фото в самом начале статьи. Это было приземистое строение из бревна. Строилась русская баня своими руками народными умельцами, которые и сохраняли все секреты этого мастерства. Сейчас, конечно же, уже не возводятся такие избушки, но многое из опыта предыдущих строителей используется и сейчас.
Любое строительство – и бани, в том числе – начинается с планирования. На фото 1-2 приведены типичные проекты русской бани.
Фото 1.
Фото 2.
Постройка эта традиционно включает такие отделения:
— тамбур; — предбанник, который одновременно является и раздевалкой; — комнату отдыха, где обычно устанавливаются диванчики, столик с самоваром и другие удобства; — моечное отделение, в котором, собственно, и происходит помывка; — парную, где располагается печь и деревянные лежанки.
Некоторые проекты включают и место для террасы (фото), но эта деталь легко вписывается в общую концепцию русской бани. На этапе проектирования также рассчитываются наиболее выгодные и удобные места подведения всех коммуникаций (водопровод, электричество и пр.).
Проекты, изображенные на этих фото, рассчитаны на бани размером 3,6х5,6; 5,7х5,8 и 3,5х4,5. Вы можете выбрать любой из них либо составить план по своим размерам, использовав приведенные здесь примеры. Все чертежи даны в масштабе, поэтому вполне подходят в качестве готовых проектов.
ИЗ ЧЕГО ДЕЛАЮТ БАНЮ
Выбор строительных материалов – важная часть работы. Рекомендуется использовать один из следующих видов:
- Брус профилированный — отличается низкой теплопроводностью, привлекательным видом. Специфика использования в необходимости выждать время для усадки конструкции и правильного проконопачивания. Применяется брус размером 15Х15 см.;
- Брус клееный — особенностью его является ровная поверхность, долговечность, эффективное сохранение тепла. Дорогой, высококачественный материал;
- Брус строганный — отличное строительное сырьё, обеспечивающее тепло и звукоизоляцию;
- Бревно — традиционный материал, требующий соблюдения соответствующих технологий. Необходимо учитывать направление волокон, а также тщательно заделывать все щели и трещины;
- Бревно оцилиндрованное — внешне эстетичный материал, обеспечивающий прочность конструкции. Условие применения — обязательное выжидание периода усадки в течение года. Лишь после этого времени можно проводить отделочные работы;
- Каркасные элементы — строительство из панелей на каркасе – дешёвый, простой вариант. Такие сооружения хорошо удерживают тепло, не нуждаются в массивном фундаменте;
- Кирпич — огнестойкий и долговечный материал, нетрадиционный для нашей страны, становится всё более популярным;
- Шлакоблоки — бани из них дёшевы в строительстве. Особенность – малые сроки постройки;
- Газобетон — влагостойкое сырьё, как и шпалы. Обеспечивает долговечность конструкции, превосходное сохранение тепла;
» Важно. Древесина считается самым подходящим материалом — её преимущества: теплоизоляционные свойства, эстетичный вид и приятный запах дерева
Строительство из брёвен или бруса, можно применять разные технологии укладки элементов (в «чашу», в «лапу»). Оптимальная высота стен сруба — 2,5 м. Нижние венцы рекомендуется собирать из твёрдых пород дерева. Приобретая строительное дерево, тщательно осматривайте его. Трещины спустя время могут увеличиться, наличие синих пятен говорит о возможном гниении внутри брёвен.
Миниатюрные каркасные баньки — оптимальный выбор
Мини-баня на загородном участке — прекрасный вариант для экономии площади. Правда, одновременно попариться в помещении 3х3 или 3х4 получится лишь у пары человек. Тем не менее, это самый быстрый и недорогой вариант постройки. За основу проще всего взять готовый проект каркасной бани. Можно объединить раздевалку, душевую и парилку в одном помещении. Или предусмотреть более удобный проект с отдельной парилкой, помывочной и комнатой отдыха.

Малогабаритные каркасные бани 4х3 или 4х4 — лучший выбор:
- для экономии на стройматериалах (брус 6 метров режут пополам, получается безотходная стройка);
- скоростного возведения конструкции (всего пару недель затрачивают на строительство при условии готового проекта);
- крепости готового сооружения (при закупке качественной пропитанной древесины каркасная баня простоит очень долго).
Баня до 20 кв. м — рациональное использование площади
Если есть возможность построить каркасную баню 6х6, ее обязательно нужно использовать. Стандартные чертежи включают парную, душевую, комнату отдыха, небольшой коридорчик и санузел. Если разработать проект с мансардой, получите дополнительную жилплощадь на втором этаже. Ее можно использовать под гостевую, бильярдную или спальню.

Техдокументация для проектов каркасных бань площадью 20 кв. м предполагает организацию опорно-столбчатого фундамента с блоками из бетона, основание должно быть надежно гидроизолировано. На пол укладывают черновой настил (22-миллиметровая обрезная доска), затем чистовое покрытие в виде 30-миллиметровой шпунтованной доски. Антисептическую обработку и утепление 10-сантиметровой минватой нужно обеспечить в обязательном порядке.
Стены, перегородки и перекрытия делают из бруса 150х100 мм, используется также доска 100х50 мм и 100х40 мм. Вагонка после камерной обработки идеально подходит для обшивки потолка и перегородок. Десятисантиметровые плиты минеральной ваты и пароизоляция в два слоя укладываются под обшивку.

Для обустройства стропильной системы предназначена доска 100х50 мм, для обрешетки — 22 мм. Для кровельных работ лучше взять ондулин с волновым профилем Выбор оконной системы — деревянной или металлопластиковой — остается за владельцем. Для парной надо приобрести дровяную печь с баком для воды, продумать кирпичную кладку там, где будет располагаться топка.
Вот такие чертежи и планы можно использовать для возведения каркасной бани своими руками.



Индивидуальные проекты позволяют реализовать практически любые пожелания будущего владельца. Есть возможность присоединить к бане веранду или террасу. И даже в чертежи готовой документации можно вносить небольшие корректировки. Компании по разработке проектов предлагают следующий ряд услуг:
- объект под ключ — проект каркасной бани с заводской сборкой стен и перегородок, полной отделкой внутренних стен и фасадов;
- черновая отделка — облицовка или фасада, или внутренних стен;
- без облицовки — базовая сборка из щитов.
Расчёт материалов и список инструментов
В качестве примера будет рассмотрен расчёт для каркасной бани наиболее распространных размеров. Каркас изготавливается из бруса, размер конструкции — 5х4 м. Основание будет столбчатым армированным.
Для каркасной конструкции можно использовать облегченный фундамент из асбестоцементных труб
Для отделки стен внутри и снаружи применяется вагонка хвойных пород деревьев. Крыша будет двускатной, покрытие — металлочерепица.
Актуальным моментом является выбор древесины. Материал дложен быть просушенным. Больше всего подойдут липа, лиственница или осина. Данные породы имеют невысокую теплопроводность, они способны длительный период времени сохранять первоначальную форму строения. Стены возводятся из досок толщиной 2—3 см. Для внешней обшивки подходят рейки из лиственницы или сосны.
Столбчатое армированное основание по стоимости и надёжности является оптимальным вариантом для каркасной постройки.
Столбчатый армированный фундамент подходит для возведения каркасных бань в большинстве регионов
Его можно использовать в большинстве регионов. Понадобится подготовить материалы в следующем количестве:
- бетон — 2 м3;
- обрезные доски для каркаса — 0,3 м3;
- арматурные прутья — 80 м.пог.
Каркас можно изготовить из досок, кусков фанерных листов или ОСП. Если грунт на территории строительства глинистый, то опалубку делать не нужно.
Самой сложной и финансово затратной деталью бани является каркас. К приобретению материалов на данном этапе нужно подходить взвешенно. Список необходимых материалов:
- брус 120х120 мм — 5,3 м3;
- минеральная вата толщиной 10 см — 36 м2;
- материал для пароизоляции — 40 м2;
- вагонка из дерева — 70 м2;
- материал для гидроизоляции — 40 м2.
Чтобы сэкономить, вместо брусков можно приобрести доски 50х100 мм.
Для экономии финансов можно использовать обрезные доски 50х100 мм в процессе изготовления каркаса
Брус должен быть второго сорта и ниже, доска может быть исключительно первого сорта. Обшивку стен с внешней стороны можно сделать не деревянной вагонкой, а пластмассовыми листами или профнастилом.
Пол изготавливается из обрезной шпонированной доски. Потолок следует обить вагонкой. Если есть желание сэкономить, для теплоизоляции можно использовать минеральную вату. Список материалов:
- обрезные доски — 1,8 м3;
- доски 150х50 мм — 0,2 м3;
- плинтус — 20 м.пог.;
- минеральная вата — 20 м2;
- вагонка из дерева — 20 м2.
Сэкономить удастся на настиле покрытия чердака. Если не планируется его использовать, то минеральная вата может быть закрыта необрезной доской или отрезками плит.
Крыша двускатная, чердак можно использовать для хранения инструментария.
Оптимальным вариантом каркасной конструкции является двускатная крыша
Утеплять крышу не нужно. Стропила будут висячими. Понадобятся такие материалы:
- водосточная система — 1 комплект;
- рейки для стропил — 0,2 м3;
- планки для обрешётки — 0,1 м3;
- карнизные рейки — 0,1 м3;
- металлочерепица — 20 м2.
В бане довольно часто вместо водостока оборудуют отмостку по периметру с помощью цементно-песчаного раствора.
Список материалов, которые также будут необходимы:
- трубы из асбеста;
- саморезы;
- гвозди;
- скобы;
- цемент;
- гравий или песок.
Понадобятся такие инструменты:
- угольник;
- строительный уровень;
- рулетка;
- электродрель;
- набор отвёрток;
- молоток;
- плоскогубцы.
Важно продумать все архитектурные и строительные задачи, к которым можно отнести:
- внутреннюю обшивку банной постройки;
- выбор оптимальных материалов для строительных работ;
- действия, которые требуются для обеспечения безопасного использования конструкции.
После подготовки инструментов и материалов можно переходить к строительным работам.
Подготовка к строительству
Любая стройка, в том числе и каркасная баня под ключ, начинается с составления проекта. Чтобы создать проект, необходимо обладать навыками, если вы не имеете навыков в этой сфере, то этот этап лучше доверить мастерам. Можно воспользоваться готовыми схемами.
Когда проект создается самостоятельно, то перед началом работ требуется определиться с некоторыми важными критериями. Важные моменты:
Составляя чертеж, необходимо внести все указанные критерии и дополнить его недостающими элементами. Отметим, чем подробней составлен проект, тем легче строительство.
Что касается расположения коммуникаций, то проект желательно составить отдельно, либо воспользоваться готовым проектом, только добавить в него свои части, отталкиваясь от нужд.
Работы с обустройством пола
Как только крыша готова потребуется осуществить утеплительные работы с цоколем, то есть осуществляется обустройство пола.
Перед тем, как заняться укладкой пола, цоколь обязательно нужно утеплить, голый кирпич не оставляется.
На данном этапе осуществляется установка сливной трубы. После этого заливается место, где будет обустроена моечная комната. Процесс заливки может быть выполнен при помощи одного листа прокладки, а также двух листов арматурной сетки. Изначально укладывается арматура, потом заливается, потом еще один слой укладывается и снова все заливается. Остальные части бани просто засыпаются таким материалом, как керамзит.
На уложенный керамзит кладется утеплитель, причем прямо под уровень пола. При этом стоит оставлять на зазор около 3 см. Потом осуществляется прибивка пола и после этого можно начинать разные уличные работы, стоит начать забивать фронтоны.
Рекомендации и советы
Для облегчения процесса строительных работ рекомендуется придерживаться нескольких советов, ведь они способны оказать немаловажную помощь. К ним относится:
- Перед началом крепления бревна или бруса к фундаменту требуется уложить гидроизоляционный слой.
- Крепить углы рекомендуется в полдерева. Это позволит их быстро заменить в случае гниения.
- Обязательно требуется провести конопатку сруба.
- При строительстве крыши рекомендуется делать «конек» как можно выше. Это защитит строение от ветра.
- При укладке первого венца требуется аккуратно нанести битумную массу. Она играет важную роль, поэтому слой должен быть толстым.
Баня: планировка и разделение общей площади на функциональные зоны
Если раньше бани состояли всего из одного помещения, то современные варианты этих сооружений включают несколько комнат. В их числе может быть моечная, предбанник, зона отдыха, бассейн, бильярдная и т. п. Чтобы в будущем владельцу не приходилось прибегать к перестройке и корректировке здания, еще на этапе проектирования необходимо внести в чертежи бани все важные пометки. Особого внимания заслуживают следующие моменты:

Для удобства современные бани включают в себя несколько функциональных зон
- планировка внутренних помещений;
- система водоснабжения;
- разводка электросети;
- канализация и система стоков.
Разработка плана бани с учетом условий дачного участка
Чтобы создать идеальные условия для отдыха в бане, нужно учитывать некоторые нюансы, которые позволят избежать неприятностей в процессе эксплуатации помещения. Желательно, чтобы зона строительства располагалась на почвах с низким уровнем пролегания грунтовых вод. Перед тем как приступить к разработке проекта, нужно сразу же исключить все участки, которые не соответствуют этому условию.

Проект бани размером 5 на 7 метров с открытой террасой
Если на территории имеется колодец, то расстояние между ним и баней не должно быть менее 5 м. Минимальный разрыв между парилкой и жилым зданием составляет 8 м. Чем дальше от бани будет размещаться компостная яма и туалет, тем лучше. Специалисты советуют делать вход с южной стороны. В зимнее время здесь образуется меньше сугробов, поэтому исключается вероятность блокировки доступа к двери. Лучше, если окна будут смотреть на запад, что будет способствовать проникновению в помещение достаточного количества солнечного света.
Если на дачном участке имеется водоем, построив баню в 15-20 м от него, можно использовать его вместо бассейна. Кроме этого, наличие реки или озера поблизости от сооружения позволит обеспечить систему подачи воды.

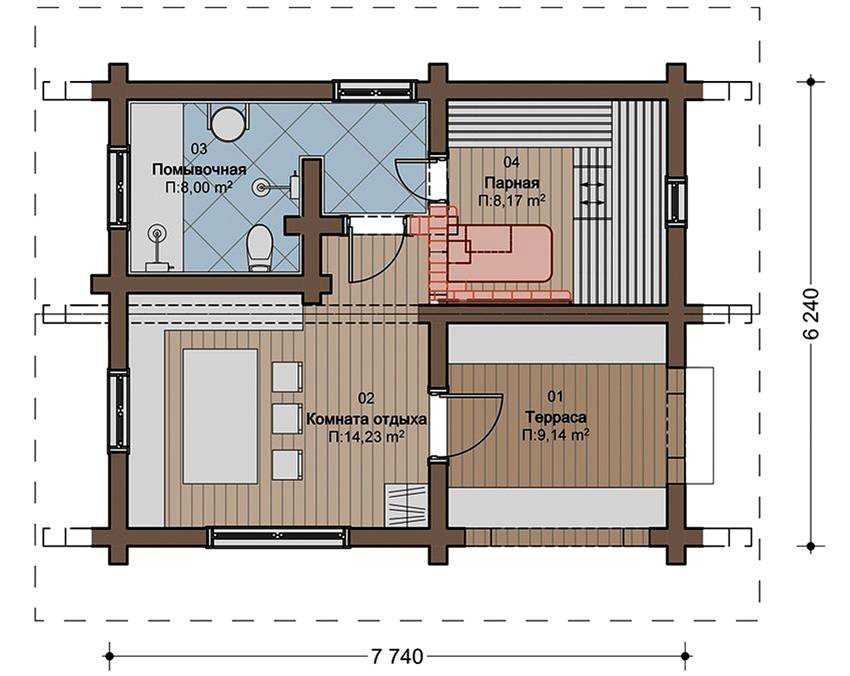
Проект бани размером 7,74 на 6,24 метра
Для небольших участков (3-6 соток) подойдут проекты бань 3 на 3, фото таких построек в изобилии присутствуют на сайтах строительных компаний. Даже в таких компактных строениях основным помещением остается парная. Под организацию этой комнаты следует отвести максимально возможное количество площади – около 8 м². Этого достаточно для того, чтобы установить 2-3 лежака (полки) и поставить печь-каменку.
Другие помещения могут быть включены в планировку бани 3х4 м и более (по желанию). Сооружение может использоваться по назначению даже при отсутствии бильярдной или санузла. Баня же без парилки существовать не может. По этой причине разделение внутреннего пространства на функциональные зоны в первую очередь зависит от размеров проекта.

Строить бани рекомендуется на расстоянии минимум 8 м от жилого сооружения
Если же хочется дополнительных удобств, в проект бани 3 на 4 м можно включить небольшую душевую комнату или помывочную. После парилки здесь можно будет смыть с себя грязь и освежиться. Для типовых проектов характерно наличие комнаты отдыха, которая будет эксплуатироваться в перерывах между сеансами пара. Для ее организации потребуется 4,5 м².
Нелишними будут и другие помещения, например, раздевалка или тамбур. Они достаточно компактны, чтобы поместиться в проекте бани 5 на 5 из бруса наряду с основными комнатами.

Проект бани размером 6х6 м со вторым мансардным этажом
5 Двускатная крыша – кровля и потолок в едином комплексе
Среди многообразия крыш различных типов (готических, вальмовых, восточных) остановимся на двускатной. Объяснение простое – эта конструкция отличается простотой, надежностью и относительно невысокой ценой. Из строительных материалов для возведения такой кровли нам потребуется:
- Брус 100×100 мм – из него мы сделаем мауэрлат, вертикальные стойки и упоры для них.
- Доска толщиной в 50 мм и шириной 100 мм – заготовки для стропильной системы.
- Необрезные доски и рейки для обрешетки.
Помимо пиломатериала, подготовим пароизоляционную пленку, минеральную вату, кровельный материал. В качестве последнего используем металлический профиль – с ним легко работать, и он относительно недорого стоит. Начинаем с обработки дерева антисептиком и противопожарным раствором, в бане – это обязательное требование. После чего укладываем по верхнему периметру стен гидроизоляционный слой. И только после этого приступаем к монтажу стропильной системы.
Начинается она с укладки бруса – мауэрлата по периметру стен. Естественно все углы проверяются строительным уголком, а горизонт – уровнем. После того, как мауэрлат выровнен, притягиваем его к стенам анкерным болтами. Следующий шаг – монтаж стягивающих балок. Они крепятся к длинным сторонам мауэрлата “в лапу”. То есть нам нужно вырубить в балках и брусе (основании) соответствующие пазы. После укладки деревянные детали дополнительно фиксируем гвоздями или скобами. Расстояние между балками желательно выдерживать в 1,5 метра.
Закончив с подготовкой основания, выставляем по торцам здания вертикальные стойки. К ним сразу крепим временные укосы (они придадут конструкции жесткость) и стропильные ноги. Соединяем стойки брусом – прогоном, на него опираются остальные стропильные ноги. Кстати, выпустите их на 20 см от стены – это снизит воздействие осадков на арболит. После монтажа стропил набиваем на них в качестве обрешетки необрезную доску, укладываем на нее пароизоляционную пленку. Крепится она с помощью строительного степлера.

Встроенную финскую сауну придумали не от хорошей жизни
И, как говорят участники FORUMHOUSE, далеко не новички в этой жизни, «при благополучных обстоятельствах и для себя этого делать не надо».
AlexeyLУчастник FORUMHOUSE
Насколько я знаю, «сухая сауна» была придумана финнами в середине прошлого века исключительно от бедности, в войну и после войны. В том числе потому, что сухую сауну проще встроить в городской дом без гидроизоляции. Потом, по той же причине, идею подхватили коммерсанты в перестроечной России. При благополучных обстоятельствах и для себя это делать не надо.
«Родная» финская сауна вовсе не сухая. Она как раз достаточно мокрая, с вениками и постоянной подачей ковшом на каменку. Конечно, в русской бане соотношение влажность/температура повыше, но в аутентичной финской сауне «вода тоже идёт литрами».
Советы по выбору материала для строительства
При выборе материала для вашей бани рекомендуется руководствоваться следующими правилами:
Для строительства бани идеально подойдёт лес, спиленный зимой.
Спиленные деревья, из которых будут делать брус, должны хорошо просохнуть
Хорошая вентиляция и навес просто необходимы для качественной просушки материала.
Внешний вид бруса очень важен. Если есть трещины, вмятины, сколы, то его относят к некачественному продукту. Также нежелательным является и наличие сучков, которые впоследствии могут выпадать. Они не подойдут даже для перегородок.
Если в дереве есть маленькие дырочки, то это может свидетельствовать о том, что в нём поселились жучки-паразиты. Сожгите такое бревно, иначе оно заразит все остальные.
Синюшные оттенки — признаки гниения.
С брусом работать легче. Он уже изначально готов к установке на фундамент. А вот брёвна нужно будет подгонять по размерам, и только потом переносить на основание.
Для хранения материала необходима подложка.
Для строительства бани лучше выбирать брус, поскольку с ним легче работать
Качественные брусья позволят не только сделать поверхность стен красивой и правильной, но и сократить сроки строительства.
Выбор стройматериалов для строительства
В принципе, специфического стройматериала нет. Их строят из того же материала, что и жилые дома. Также нет и предпочтения тому или другому материалу Таким образом, для строительства бань одинаково хорошо подойдут
- Дерево
- Газобетон
- Керамзитобетон
- Кирпич
- Арболит
- Шлакоблоки
Единственно, при выборе материала необходимо учитывать время пользования баней: или вы используете ее круглогодично, или же только в летний период. Если вы живете на даче, то строить летний вариант смысла нет. В то же время, если у вас дача только сезонная, то возводить крепкую, для пользования ею в зимний период так же бессмысленно. Это только лишний расход средств и сил.
Но на выборе материала это большой роли не играет. При строительстве зимней бани вам придется дополнительно позаботиться о ее теплоизоляции, иначе она будет долго нагреваться в морозы и быстро отдавать тепло. Впрочем, если вы планируете быстро заскочить в неё и долго там не засиживаться, то на теплоизоляции можно не «заморачиваться».
Конечно, самой лучшей считается баня из дерева, а подходящим для этого материалам будут бревна. Вы делаете сруб, который потом превращаете в желаемое.
Помимо бревен можно при строительстве использовать еще и брус, что так же встречается довольно часто.
В отличие от бревен брус уже защищен от повреждений и обработан
Другой вариант строительного материала, на котором многие останавливают свое внимание – это кирпич. Чем хорош такой материал, так это своей большей долговечностью, нежели дерево. Баня из кирпича – на века
Кроме того, кирпич еще и более пожаробезопасен
Баня из кирпича – на века. Кроме того, кирпич еще и более пожаробезопасен.
Такая баня смотрится, конечно несколько красивее, но есть и свои минусы. Во-первых, прогревается намного дольше деревянной. Вентиляция намного хуже чем в деревянной – кирпич не «дышит». Во-вторых, под кирпичную баню необходимо делать только ленточный фундамент, а это удорожает стоимость работ, да и сам кирпич намного дороже. И последнее – это время на строительство. Возводить кирпичную придется намного дольше деревянной.
Газоблок делается на основе на основе цемента, кварцевого песка и пенообразователей. Он так же как кирпич огнеупорен. Но отличается своим весом. Несмотря на то, что газоблок намного больше кирпича, он легкий и один человек сможет легко управиться с сотней блоков
Есть и еще важное отличие такого материала от кирпича – газоблок легко пилиться и сверлиться
Другой материал, аналогичный газоблокам – керамзитоблок делается на основе цемента, керамзита, вспененной и обожженной глины. Такие блоки хуже поглощают влагу в отличие от газоблоков и имеют низкую теплопроводность. Это делает их более выгодными по отношению к газоблокам. Вес их так же небольшой, но и устойчивость к низким температурам гораздо выше.
Есть еще одно выгодное качество по отношению к газоблокам. Если для монтажа газоблоков необходим специальный клей, который стоит не дешево, то керамзитоблоки можно сажать на обычный цемент.
Еще один популярный в старые времена материал – арболит. Это блок, который состоит в основном из древесных отходов.
Теплопроводность у этого материала ниже всех перечисленных. Стоимость по сравнению с деревом невысока, но пеноблоки все же дешевле. Если вы выбрали для строительства бани арболит, то снаружи его лучше общить вагонкой для защиты от влаги.
Еще один материал – это шлакоблок. В основе его лежит по сути различный строительный мусор, залитый бетоном.
Шлакоблок по качеству аналогичен пеноблокам, но среди минусов – высокая теплопроводность и гигроскопичность. А это значит, что при строительстве придется делать гидроизоляцию.
И последнее, о чем стоит упомянуть, это вариант бани из дерева, но только не брусовая или срубовая, а каркасная. Делается она проще и быстрее, поскольку используются доски из которых собирается каркас. Отсюда и название.
Каждый из вариантов имеет свои преимущества и, главное свою цену. Какой вы выберете, зависит только от вас.
Здесь мне хотелось бы остановиться на варианте строительства бани из керамзитоблоков. Этот вариант, после каркасного считается самым бюджетным и простым в изготовлении.
Выбор и сортировка древесины
Древесину лучше заготавливать поздней осенью или зимой. Спиленное дерево должно «вылежаться» не меньше месяца, только потом можно приступить к его обработке.Сначала бревна очищаются от коры, при этом во избежание растрескивания, на концах бревна необходимо оставить полосы коры, шириной порядка 15 см.
Правильное хранение бруса
Для нескольких нижних венцов сруба бани лучше использовать твердые породы древесины – лиственницу или дуб, обработанные антисептиками. Они менее подвержены гниению. Последующие венцы можно изготавливать из иных хвойных пород (сосна, кедр, ель).
Сколько кубов бруса надо на баню 3х4 зависит от проекта, но обычно составляет 6 – 7 кубических метров
Особое внимание уделите процессу отбраковки материалов
Трещины недопустимы
Дефекты бруса, с которыми нельзя мириться:
- трещины (при усадке сруба они могут расшириться, что приведет к его загниванию);
- признаки гниения на поверхности дерева (синева);
Синева свидетельствует о гниении материала
повреждения дерева вредителями (червоточины).
На фото -червоточина
На чем не стоит экономить
В чем не стоит экономить средства? Баня своими руками дешево – это важно, но стоит помнить, что дерево – горючий материал, если вовремя не доглядеть, строение может вспыхнуть. Не экономьте на возведении и монтаже дымоходов и труб, помните о правилах противопожарной безопасности. Вложите деньги в огневую пропитку, биозащиту – от вредителей и древоточцев
Также потребуются изоляционные материалы для защиты половиц перед печкой и для стен, которые будут перегреваться
Вложите деньги в огневую пропитку, биозащиту – от вредителей и древоточцев. Также потребуются изоляционные материалы для защиты половиц перед печкой и для стен, которые будут перегреваться.

Также не стоит слишком жадничать на крепежных материалах. Чем ниже качество метизов, тем быстрее они выйдут из строя, заржавеют во влажных условиях. На хорошие марки цена не такая уж высокая, а пользы будет больше. Если крепеж проржавеет, то даст некрасивые потеки, а элементы стройки могут обрушиться из-за снижения прочности всех узлов и соединений.

Не забывайте о корректной вентиляции. Даже маленькие бани на даче своими руками по 4-6 метров нужно проветривать, чтобы люди не задохнулись. И это поможет не разводить плесень, гниение полов и стен.

Обрешетка и кровля.
Поверх стропил по всей площади уложить
ветро-гидроизоляционную
мембрану. Поверх вдоль стропил прибить гвоздями 4х100 контробрешетку
из брусков 50х50. По контробрешетке прибивается гвоздями обрешетка из
доски 25х150
мм.
Обрешетку и
контробрешетку обработать антисептиком. По обрешетке укладывается
кровельное покрытие: профлист, металлочерепица, керамическая
черепица или ондулин. В данном варианте показан профлист (крепится к
обрешётке специальными кровельными саморезами).
Цвет профлиста — антрацит RAL 7016.


Длина обрешетки рассчитывается так, чтобы уложить
ровное количество листов профлиста. Расчётная ширина профлиста 1100
мм, поэтому в данном случае я делаю обрешетку длиной 5500 мм. В том
месте, где через кровлю пойдёт дымовая труба печки не забыть сделать
проём в обрешетке!
К торцам стропил и скатов прибивается ветровая
доска (из доски 20х120),
выкрашенная в бордовый цвет (RGB 150/43/53). На коньке крепится коньковая планка,
по торцам скатов
крепится ветровая планка,
к торцам стропил — капельник (из стали в цвет профлиста).







![Как построить баню из бруса своими руками [50 фото]](http://fermaolenei.ru/wp-content/uploads/0/2/c/02c079b9b252c2520252a86c48d3dfc9.jpeg)


![17+ этапов строительства бани 3х4 из бруса своими руками [+15 фото]](http://fermaolenei.ru/wp-content/uploads/c/b/b/cbbdc44bc859d3b5b9cfc38de7ca724e.jpeg)




















