Столбчатый фундамент под веранду
Наиболее подходящим для легких сооружения является именно этот тип фундамента. Делается легко, никаких навыков не нужно. Для сооружения такого фундамента можно использовать какие-то блоки или кирпичи. Для сооружения легкой веранды нам понадобится сделать 3 – 5 опор. Эти опоры никак не связываются друг с другом. Столбчатый фундамент подразумевает собой отдельно стоящие опоры, которые не зависят одна от другой. Стоит не забывать, что такой фундамент нужно делать на глубину фундамента дома или постройки, возле которой затеяли строительство веранды.
ШАГ 1: материалы. Какие материалы и инструменты понадобятся при строительстве столбчатого фундамента? Все банально просто. Арматура сечением 0,7 – 1,0 см, бетонный раствор, рубероид, веревка для разметки.
ШАГ 2: территория. Сначала нужно расчистить всю территорию от мусора и посторонних предметов, потом уже делаем разметку и забиваем колышки. Расстояние между опорами не должно превышать 1,5 метров. Именно на таком расстоянии мы забиваем колышки. Именно это будут опоры нашего столбчатого фундамента.
ШАГ 3: углубления. На месте каждого колышка нужно сделать ямы глубиной 70 – 100 см (в зависимости от глубины фундамента дома). Для этого можно использовать садовый бур, или любое другое приспособление, которое с легкостью справится с поставленной задачей. На дно каждой ямы засыпаем ровным слоем 15 — 20 см песка, и трамбуем его.
ШАГ 4: каркас опоры. На данном этапе инструкции, как сделать столбчатый фундамент под веранду, нужно установить каркас будущей опоры. Для этого, по размеру будущего столба, нужно сделать каркас из арматуры, и поместить его в центре готовой ямы. Варить прутки между собой нельзя. Для соединения прутьев используется специальная вязальная проволока.
ШАГ 5: опалубка. Чтобы не делать внутри ямки опалубку из деревянных досок, можно использовать рубероид, как форму для будущего столбчатого фундамента. Этот рубероид будет отличной гидроизоляцией для основания фундамента.
ШАГ 6: опоры. Далее нужно сделать опоры из блоков или кирпичей, нужной высоты и нужной площади. Сначала нужно сделать небольшую подушку из песка, и хорошо утрамбовать её. В основном используется обычный шлакоблок, который укладывается по специальной методике. Уже потом можно обложить его облицовочным кирпичом или декоративной плиточкой. Не забываем про строительный уровень.
Такой столбчатый фундамент поможет вам сэкономить время и деньги, выполняя ту же самую функцию, что, например, ленточный. Только на его сооружение вам нужно будет потратить 1 – 2 недели. А столбчатый можно сделать за 2 – 4 дня. Такой фундамент используется для сооружения легких веранд и пристроек (дерево, профильная труба).
Делаем каркас и крышу деревянной веранды своими руками
После полного застывания фундамента переходим к изготовлению каркаса деревянной веранды. Сначала нам нужно будет сделать нижнюю обвязку (ростверк). Делается он элементарно просто. Для его изготовления нужны крепкие деревянные балки или брусья. Мы будем использовать брус 100 х 100 мм для строительства всего каркаса, а брус 150 х 150 для изготовления ростверка. Пошаговая инструкция, как построить веранду своими руками продолжается.
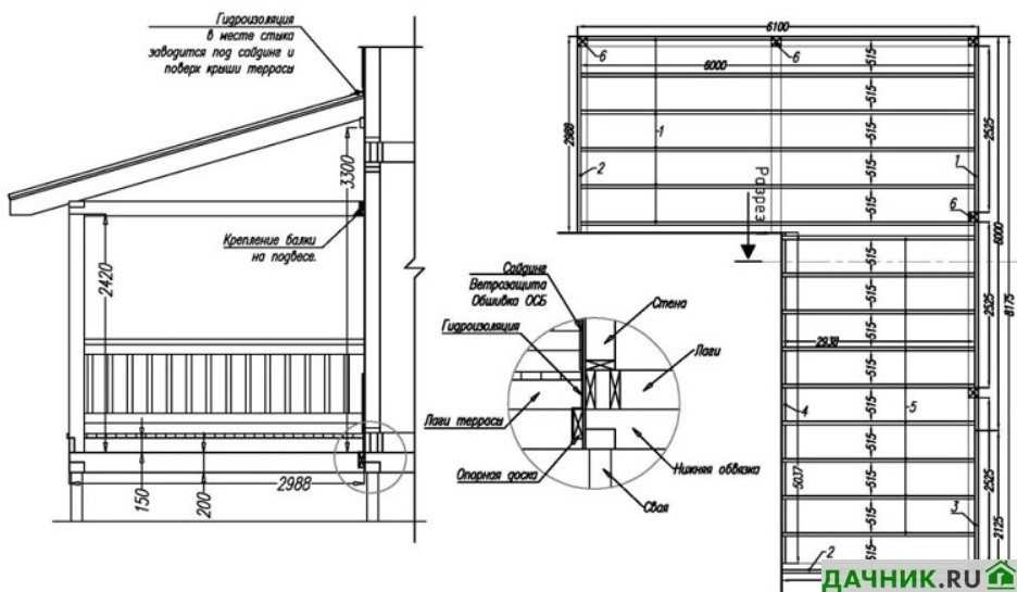
ШАГ 1: ростверк. Чтобы изготовить надежную веранду, нужно сделать мощный фундамент и крепкий ростверк. Фундамент у нас уже есть. Перейдем к следующему. Чтобы сделать крепкий ростверк, нам понадобится использовать брус 150 х 150 мм. С него мы будем делать нижнюю обвязку всей веранды. Данный ростверк монтируется на шпильки столбчатого фундамента. В соответственных местах сверлятся отверстия, брусья устанавливаются на шпильки и сверху затягиваются гайками. Лишняя часть шпильки обрезается.
ШАГ 2: каркас веранды. Для каркаса и крыши веранды мы будем использовать брус 100 х 100 мм. Перед тем, как сделать веранду своими руками, необходимо обработать все доски от огня и влаги специальными химическими средствами. Чтобы каркас веранды был крепким, все углы нужно укреплять монтажными уголками, а в месте соединения каркаса веранды с ростверком, нужно сделать крепление в полдерева + усилить монтажными уголками. Каркас деревянной веранды делается очень просто. Если вы захотели сделать открытую веранду своими руками, то вообще никаких проблем возникнуть не должно.
ШАГ 3: пол. Для изготовления пола веранды нужно установить специальные лаги на ростверк. В деревянном брусе нужно выпилить специальное углубление для установки лаги. Доски устанавливаются в эти пазы, и крепятся монтажными уголками. Теперь нужно приступать к изготовлению самого пола нашей веранды из дерева своими руками. Для этого мы будем использовать террасную доску, которая уже сразу защищена от влаги укладываем её на лаги, и крепим специальными саморезами по дереву.
При строительстве каркаса, нужно учитывать будущий скат крыши, и делать необходимый угол наклона нужно прямо сейчас. Обычно, те колоны, что располагаются ближе к стене, делаются выше. Тем самым мы в конце получим нужный нам наклон крыши.
ШАГ 4: верхняя обвязка. После возведения каркаса конструкция веранды все равно остается не надежной. Чтобы закрепить все «стены» и углы веранды, нужно изготовить верхнюю обвязку. Для этого мы будем использовать все тот же брус 100 х 100 мм. Связываем все вертикальные стойки горизонтальными брусьями, используем монтажные уголки и крепление в полдерева.
ШАГ 5: крыша. Изготовление веранды к дому своими руками располагает, что крыша будет односкатной. Чтобы сделать односкатную крышу, много ума не надо. Когда вы строили каркас, вы уже позаботились об угле наклона крыши. Верхняя обвязка дала нам «фундамент» для строительства односкатной крыши. Теперь нужно положить несколько продольных стропильных досок, и сделать обрешетку, под вашу будущую кровлю. Густота поперечных планок полностью зависит от кровельного материала, который будет использоваться.
По необходимости делаем гидроизоляционный и утеплительный слой, прибиваем все оцинкованными гвоздями с широкими шляпками. Теперь можно приступать к монтажу кровельного материала. Наша любимая металлочерепица будет использоваться и для строительства дачной веранды своими руками. Крепим листы металлочерепицы специальными саморезами с прорезиненной шайбой.
Вот наша деревянная веранда почти готова. Пол есть, стены есть, крыша есть. Осталось её немного приукрасить и довести до логического завершения всю конструкцию. Можно добавить поликарбоната на стены веранды. Если положить 1 лист поликарбоната горизонтально, и зафиксировать его снизу каркаса, то получится вполне неплохо. Сейчас мы об этом и поговорим.
Черновой пол
Деревянный пол.
Бетонный пол.
Есть два основных варианта, как его сделать: бетон и деревянные лаги. Первый способ намного проще, но потом пол придется дополнительно утеплять, так как бетон обладает большой теплопроводностью, и на веранде будет холодный пол как зимой, так и летом. Бетонная стяжка делается следующим образом:
- В подпол засыпают 10 см песка.
- Поверх песка насыпается аналогичный слой керамзита.
- Сверху на керамзит укладывается арматура, чтобы избежать трещин в полу.
- И на арматуру уже заливается бетон, состоящий из цемента, песка и воды.
Деревянный пол обладает хорошими теплоизоляционными свойствами и делается следующим образом:
- Пространство от земли до уровня фундамента заполняется керамзитом для утепления.
- На керамзит и фундамент надо положить двойной слой рубероида
- Лаги промазываются антисептиком и закрепляются на фундаменте.
На лаги прикрепляют обрезные доски.
Веранда своими руками поэтапно
Соблюдение технологи строительства предполагает поэтапное выполнение работ. Это позволит избежать ошибок и дополнительных расходов на их исправление.

Фундамент
Первым делом потребуется выровнять площадку. Для этого снимают небольшой слой почвы. По углам получившейся территории надо вбить штыри. Между ними размещают дополнительные колышки на расстоянии в 1,5 метра. Натянутый между угловыми штырями шнур позволит сделать ровную разметку.

















Для веранды летнего типа применяют столбчатый фундамент. Его суть заключается в установке отдельных опорных столбов, которые заглубляют в грунт. Это самый недорогой и простой вариант фундамента.
- На площадке потребуется выкопать ямы под опорные столбы. Глубина ям и их количество напрямую зависят от площади и веса конструкции и типа грунта. Обычно глубина ямы не превышает метр.
- Дно ямы утрамбовывают. В нее помещают песок и щебень. В качестве столбов можно применить бетонные блоки, цементный раствор, красный кирпич.
- В яму заливают бетонный раствор, затем монтируют опоры.
- Все опоры должны иметь одинаковую высоту. Для гидроизоляции применяют рулонный материал или битумную мастику. Защита от влаги позволит продлить срок службы сооружения.

Каркас
Монтаж каркаса является следующим этапом выполнения работ. Его тоже производят в четкой последовательности.
- Опоры закрывают рубероидом. На них укладывают брус. Необходимо следить, что нижняя обвязка не сместилась. Для этого в угловых опорах нередко фиксируют обрезки стальной арматуры. В деталях из бруса сверлят отверстия, сквозь них пропускают арматуру, которую затем загибают.
- После обвязки низа по периметру необходимо закрепить поперечные элементы из бруса. В заготовках заранее выпиливают пазы. Детали крепят гвоздями с шагом в 1 метр.
- По наружным углам основы и вдоль стены основного строения необходимо установить детали из бруса. Их длина не менее 2 метров вертикально. Это стойки. Их фиксируют к обвязке на стальные уголки и саморезы.
- Из отдельных деталей монтируют верхнюю обвязку, крепят на стойки. Надежную фиксацию обеспечат саморезы и уголки.

Монтаж пола
Для монтажа пола применяют доску из лиственницы или декинг. Если намечено использование сосновых досок, их предварительно обрабатывают со всех сторон антисептическим составом.

Он защитит древесину от влаги и насекомых вредителей.
- Черновой настил монтируют на стойки из бруса, размещая доски ребром. Для фиксации применяют мебельные болты.
- Раму и лаги крепят ниже уровня пола на саморезы.
- Сверху настилают доски. Их можно расположить параллельно одной из стен веранды или под углом. Второй вариант увеличит расход материала на 20%, но будет выглядеть весьма эстетично.

Основу крыши монтируют из бруса или досок
Важно позаботиться об уклоне, который обеспечит стекание дождевой воды.

















Отделка
Перечень отделочных работ зависит от типа конструкции. Для открытой летней веранды необходимы ограждения и перила. Они играют защитную и декоративную роль.

Рисунок ограждения может быть:
- Вертикальным;
- Горизонтальным;
- Крестовидным.

Обычно высота ограждений на летних верандах не превышает 1 метр.
- Первым шагом станет монтаж дополнительных опор. Расстояние между ними определяют с учетом веса крыши и типа ограждения. Вертикальное ограждение мастерят с шагом 0,5 метра. Для горизонтального или перекрестного варианта потребуются опоры на расстоянии до 1,5 метров.
- Сверху на ограждение крепят перила.

Широкие перила позволят украсить веранду растениями в горшках. Нередко отдельные элементы опор ограждения применяют для дополнительной поддержки кровли.

Лестница на веранду
При проектировании лестницы важно учесть общие требования:
- Количество ступеней всегда должно быть нечетным;
- Высота ступеней не превышает 20 см;
- Ширина ступени варьируется от 36 до 45 см.

Упростит работу точный чертеж.
- В основание небольшой лестницы можно положить кирпичи. В этом случае потребуется сделать для них небольшой фундамент.
- Если ступени будут опираться на пару бревен или доски, то необходимо сделать соответствующие боковые надрезы. К ним крепят ступени.
















При работе над лестницей для летней веранды необходимо позаботиться о безопасности членов семьи. Доски должны иметь гладкую поверхность без выступающих частей и заусениц.


Завершающим этапом станет покраска летней веранды. Можно использовать прозрачный лак или красу для наружных работ. Это позволит сделать конструкцию более привлекательной, дополнительно защитит материал от атмосферного воздействия.

Полы на веранде
В качестве материала для полов используется еловая или сосновая доска 150*50 мм. Конечно, можно сделать полы из лиственницы, дуба или так называемой палубной доски, но это уже другие финансовые затраты. Доску перед укладкой на пол необходимо построгать и отшлифовать.
При открытой террасе, осадки (дождь и снег) обязательно будут попадать на половую доску, и она будет намокать, что может привести к ее быстрому гниению. Поэтому ее необходимо обработать антисептическим раствором. Для быстрого стекания воды и проветривания досок, их необходимо укладывать с зазором (3-5 мм) друг от друга. Крепятся доски к половым лагам при помощи длинных саморезов (95-102 мм).
Варианты пристроек
Перед тем, как к загородному коттеджу пристраивать дополнительное помещение, необходимо сразу определиться с его функциональностью.
Дополнительное жилое помещение
Если требуется дополнительное жилое помещение, тогда понадобится полноценный строительный проект, как для возведения каркасного здания:
- Расчет и обустройство фундаментного основания;
- Расчет строительных материалов для сооружения каркаса, полноценных утепленных стен здания, полового основания, потолка и кровельной конструкции;
- Гидроизоляция и вентиляция помещения;
- Внутренняя и наружная отделка.
Кухня или санузел
Если пристройка к дому делается с целью обустройства в ней кухни или дополнительного санузла, ванной или душевой, предварительно необходимо спланировать и проложить необходимые коммуникации (водопровод и канализацию).
Только послу обустройства коммуникационных систем можно возводить фундаментное основание для каркасной пристройки. При этом участки прохождения труб через бетонное основание обязательно тщательно утепляются.
Веранда
Чаще всего к частным домам пристраивают веранды для отдыха. Данные конструкции могут быть открытого типа для использования в летний период, и с остеклением для круглогодичной эксплуатации.
Такую пристройку сделать проще всего, в т.ч. своими руками, чем полноценное жилое помещение. В данном случае не требуется прокладка коммуникационных систем, утепление и гидроизоляция (для летних веранд), а также обустройство мощного фундамента и сложной кровельной конструкции.
Фундамент
Перед тем, как пристроить террасу нужно обязательно соорудить фундамент. Обычно его делают из бетонных блоков 30х30 см, вкапывающихся на половину высоты в грунт.

Столбы нужно монтировать на песчаную подушку. На столбы укладывается гидроизоляционный материал для предотвращения гниения древесины.

Нужно подготовить стойки, посредством которых вся нагрузка, формируемая конструкцией, будет равномерно распределяться по фундаменту. Обычно в качестве стоек используется брус 100х100 мм.

При этом такой же брус можно использовать и для нижней обвязки. Если планируется большая терраса, лучше применять брус более толстого сечения.

К фундаменту стойки крепятся посредством кронштейнов. Для дальнейшего монтажа пола нужно установить лаги. Обычно их делают из досок сечением 50х150 мм.

Пристройка к зданию из дерева
Конструкцию к возведённому древесному дому лучше возводить из аналогичного стройматериала. Из бруса возводят закрытые комнаты и террасы возле дома, а также открытые веранды. От функционального назначения пристроя и материалов здания зависит разновидность бруса для стройки: клееный брус, дерево естественной влажности с атмосферной сушкой, брус камерной сушки.
Устройство основы для пола
При возведении пристройки к дому из дерева своими руками ленточный фундамент позволяет уложить пол из пиломатериалов или бетона. Столбчатый предусматривает укладку половых досок.
Для укладки прочного и тёплого бетонного пласта внутри ленточного основания пристройки к деревянному зданию требуется выполнить следующее:
- В бетонной коробке потребуется убрать землю на глубину 25-35 см;
- На выровненную поверхность грунта насыпать песочную подушку толщиной 10 см, которую хорошо утрамбовать. Для утепления бетонной стяжки вместо щебня нужно использовать керамзит, который требуется насыпать слоем толщиной 15-20 см;
- На керамзит требуется уложить арматурную решетку и сверху на неё установить маячки на одном уровне. В некоторых помещениях (к примеру, санузел, ванная комната) иногда требуется делать стяжку с уклоном для быстрого стекания с неё воды в систему водосбора;
- После подготовительных работ надо уложить бетонную смесь, её поверхность разровнять и разгладить правилом. Залитый бетон увлажняется и накрывается плёнкой для предотвращения быстрого испарения из него влаги и образования трещин.

Обустройство пола в каркасной пристройке к деревянному дому своими руками:
- Каркасная основа собирается из брусков сечением 15×10 см;
- Они укладываются на покрытый рубероидом столбчатый фундамент или ленту и фиксируются к бетону с помощью анкеров и проделанных в них отверстий;
- Друг к другу брусья в точках пересечения крепятся металлическими уголками;
- Уложенные на каркас половые доски тоже хорошо скрепляют между собой брусья и каркас в целом.
Видео:
На столбчатый фундамент чаще всего устанавливают каркасные стены, а на ленточный – каркасные и кирпичные.

Этапы возведения каркасных стен:
- Каркас для них изготавливают из бруса, который крепят к венцовым балкам перекрытия. К ним каждый брус можно крепить отдельно, но быстрее и удобнее собрать каркасную часть на земле, после чего установить её вертикально и закрепить.
- Для соединения каркаса с деревянным домом на его стенках нужно сделать вертикальную разметку, по которой и будет крепиться отдельный брус или собранная часть конструкции.
- Для надёжности все каркасные бруски надо крепить друг к другу железными уголками.
- После монтажа каркасной пристройки к дому своими руками её желательно обшить с наружной стороны фанерой либо деревом (досками), чтобы она стала более жёсткой.

Верхняя горизонтальная балка фиксируется к стеновой части дома железными уголками или с помощью анкеров. После возведения крыши стены хорошо утепляются и обшиваются изнутри строения.
Этап третий — монтаж пола террасы
Поэтапный процесс монтажа террасы из дерева продолжается изготовлением пола пристройки
Особое внимание следует уделить правильному подбору материала, это — условия эксплуатации, сопряженные с постоянным воздействием влаги и резким перепадов температур
Стандартная половая доска из сосны или ели худшее что можно подобрать для веранды. Если вы решитесь ее использовать, необходимо обязательно двукратно обработать пиломатериал антисептическими составами, защищающими дерево от гниения и поражения различными микроорганизмами
Особое внимание уделите обработке досок с торца
Лучшим выбором для пола веранды является половая доска из лиственницы. Ее плюсы:
- устойчива к воздействию влаги и поражению грибками, плесенью, насекомыми;
- имеет красивую древесную структуру;
- хорошо поддается дополнительной обработке защитно-декоративными составами.
Вместо лиственницы для уличных террас часто используют искусственный напольный материал – декинг.

Для повышения декоративных свойств всего изделия в целом настилать половое покрытие можно не только традиционно вдоль одной из сторон террасы, но и под углом к ним. При этом способе расход половой доски на веранде будет увеличен процентов на 20, но оно того стоит. Так же осуществляют укладку пола террасы от центра по диагоналям, что требует выполнения точных угловых резов, которые можно сделать на торцовочной циркулярной пиле.
Фундамент для пристраиваемой конструкции
В качестве основания для сооружения чаще всего используют ленту или столбчатый фундамент, каждый их них обладает определёнными преимуществами и недостатками.
Ленточный фундамент
Представляет собой замкнутый контур из железобетона, возводимый под всеми несущими стенами постройки, который передаёт нагрузку от них на грунт. Он позволяет возводить деревянные, кирпичные и монолитные строения.

Рассмотрим поэтапное возведение:
- На выделенном под строение участке делается разметка с помощью колышков и веревки;
- По разметке для фундамента под пристройку к дому своими руками выкапывается траншея, зависит её глубина от залегания основания дома. Ширина нужна больше, чем толщина укладываемой стенки на 10-15 см;
- В траншею засыпается песчаный пласт в 10-12 см и утрамбовывается;
- На дно выкладывается гидроизоляция, которая выступает на поверхность почвы на 40-45 см;
- На гидроизоляцию устанавливается арматурная решётка, которая соответствует форме возводимого фундамента по ширине и высоте;
- Ленту заливают бетоном на ⅓ высоты, когда данный слой застынет, то укладывается второй на ½ оставшейся высоты;
- После заливки 2-го слоя устанавливается опалубка из древесины для возведения надземной части ленточного основания (цокольной части). Гидроизоляционный материал запускается внутрь опалубки и фиксируется к её стенкам;
- Опалубка заполняется бетонной смесью, в процессе укладки уплотняется возвратно-поступательными движениями куском арматуры или вибратором для предотвращения образования в нём пор. После заполнения всей опалубки поверхность бетона разравнивается по уровню;
- Далее бетон должен высохнуть и набрать 100%-ю прочность через 28 дней. Первые 3 дня его нужно смачивать через 2-3 часа водой. Затем он поливается 3 раза в сутки на протяжении 25 дней.
После затвердения основания опалубка снимается, поверхность покрывается снаружи материалами для гидроизоляции.

Столбчатый фундамент для пристройки к дому своими руками
Его применяют при постройке веранд и летних кухонь, обустраивают из красного кирпича либо бетона. На столбы в основном устанавливают каркас из древесины, на него настилают сам пол.
Возводится основание таким образом:
- Размечается выделенный для строительства участок. Столбы устанавливают с шагом 1,5 м;
- Для каждого столбика копается отдельная 50х50 см ямка с углублением на 50-60 см. К верху она должна расширяться на 10 см со всех сторон;
- На дно ямы насыпается подушка из слоя песка и щебёнки. Затем её дно и стенки покрываются гидроизоляцией;
- Если опоры из кирпича, то на дно ям укладывается слой раствора, на который после застывания кладётся первый ряд кирпича;
- Если опорные столбики из бетона, то в ямы устанавливают арматуру и опалубку на высоту опоры. Гидроизоляция запускается внутрь опалубки и крепится к ней;
- В установленную опалубку слоями заливают бетон. Причем каждый слой раствора должен нормально схватиться;
- Верх столбика разравнивают, бетон увлажняется водой до набора им марочной прочности;
- Опалубка демонтируется, столбы покрываются гидроизоляционным материалом (обмазываются битумной мастикой, на которую наклеивается рубероид);
- Пустоты между стенками ямы и опорой засыпаются перемешанным с щебнем грунтом, который плотно утрамбовывается.

На верх столбов укладывается рубероид для укрытия от воздействия влаги уложенных на них деревянных брусьев.
Чтобы пристроенная конструкция не отошла со временем, возводят её с небольшим наклоном в направлении дома. Уклон стенок по вертикали закладывается в 1 см на каждый метр высоты пристроя. Чаще всего уклон закладывается на этапе возведения основания.

Строительство террасы на дачном и садовом участке
Ниже представлены фото, как построить террасу на своем садовом участке.
Основные этапы работы:
1. Перед тем как сделать террасу своими руками, возводится ленточный фундамент, толщина которого составляет 40-50 см. В боковых стенах на уровне пола делают отдушины. На зимний период они закрываются.
2. При сооружении потолочного перекрытия расстояние между балками выбирается 0,5-0,8 м. При этом следует учитывать, что на проемы между ними также приходятся нагрузки, именно поэтому делать их слишком большими не стоит. Оптимальным вариантом будет применение балок сечением 6×18 см с шагом между ними в 40 см.
3. Перед укладкой балки обязательно антисептируют. Размещают их параллельно друг другу вдоль короткой стороны пролета, соблюдая шаг. Сопрягают балки сковороднем с венцами «сруба», а затем торцы обрабатывают антисептиком. Для гидроизоляции концы балок оборачивают различными материалами. Нередко куски толя, рубероида и войлока подкладывают под концы балок.
4. Если в перекрытии необходимо выполнить проем, устанавливается дополнительный ригель, на котором и монтируются нужные балки. Прикрепляют их к ригелю несколькими способами — с помощью соединения «ласточкин хвост», металлическими хомутами или на черепных брусках. В больших пролетах балки при необходимости можно укрепить с помощью промежуточных столбов.
5. Для передачи нагрузок балкам устраивают накат. Его выполняют в виде щитов из продольных или поперечных досок или в виде щитов, как из продольных, так и из поперечных досок. Их плотно подгоняют одна к другой. Для сооружения наката нередко используется листовой материал.
Главное, чтобы он был способен выдержать значительный вес. С боковых сторон к балкам прибивают бруски сечением 5 x 5 см, на которые и опирают щиты. Готовый накат покрывается слоем рубероида.
6. Кровлю делают с углом наклона 20-25°. Брус с фигурным сечением 12 x 15 см укладывается по одной из боковых стен на толь, коньковый брус скрепляется с нижними брусьями обвязки с помощью легких стропил, имеющих сечение 7×10 см. Они устанавливаются попарно. В брусьях с обеих сторон выбирают фальцы, после чего в них укладываются стекла или листы фанеры нужного размера.
7. Установив нижние обвязочные брусья и врезав в них стропила, на внешней стороне стены выполняют слив. Он закрывается козырьком из кровельного железа, который должен свешиваться на 5-6 см.
8. В том случае, если выполняется остекление кровли, используют шпросы с сечением 4 x 7,5 см. Они выполняются из сухих обрезков бруса, перед монтажом их загрунтовывают краской. Эти элементы устанавливаются таким образом, чтобы промежуток между фальцами был шире стекол на 3—4 см.
9. Во время крепления шпроса к нижнему обвязочному брусу производится обрезка первого наискось. Необходимо оставить в верхней части конец длиной 5 см, который можно свободно уложить на козырек из металла. К верхнему коньковому брусу шпрос крепят аналогичным образом.
10. Пол террасы делают из бетонных плит. Грунт предварительно выравнивается, после чего на нем устраивается песчаная подушка, на которую и укладываются плиты.
Какую сделать крышу на веранде?
Можно потолок веранды оставить односкатный или выстелить ровный. В первом случае нужно аккуратно обшить шпунтованными досками косяк, во втором – горизонталь, проложив и там и здесь утеплитель.

Поскольку получился ровный прямоугольник, то на состыковке с крышей дома укрепите брусковые столбики, на них укрепите прочный брус. С него уложите бруски к нижнему мауэрлату. На 6 м надо не меньше пяти – шести.

Это будут стропила. Их обшиваете сверху досками, промазываете битумом или стелите гидроизоляцию, а сверху монтируете односкатную крышу.

-
Виды, применение и характеристики тротуарной плитки
-
Нужна ли проверка земельного участка перед его покупкой?
-
Какие модели угловых диванов существуют: как быстро сориентироваться во всем многообразии моделей и расцветок































